Logan
Priced from $574,990
Logan
Priced from $574,990
4
Beds
3.5
Baths
2
Stories
3,187-3,534
Sq. Ft.
The primary suite is dreamy, with two walk-in closets, a split vanity and an optional box or bay window. What you’ll love about this plan: Open-Concept Floor Plan HomeSmart® Features Tall Ceilings Gameroom Flex Room Covered Patio 3-Car Garage
Highlights Include
3-Car Garage
Open-Concept Floor Plan
Gameroom
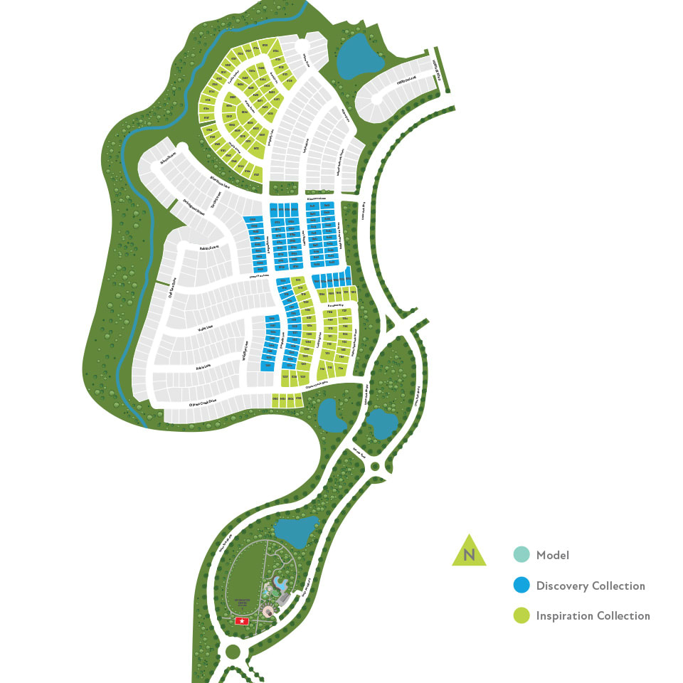
Inspiration Collection at Union Park Community Map
See how your future home fits into the bigger picture. Our interactive map lets you see how each homesite lines up with trails, pools, parks, gathering spaces, and other amenities.

Mortgage Calculator
Principal & Interest*$3,447
This calculator will help you get a sense of how much you'll pay each month.
**Estimated Monthly Cost of Options refers to the additional monthly payment amount attributed to the design
options and upgrades you have selected, and includes principal and interest, as well as taxes and insurance
(both based on national averages), and is based on a 30 year full amortizing fixed rate loan. The borrower’s
actual rate and associated payment will vary from borrower to borrower depending on the details of the loan
transaction (i.e. borrower’s credit score, loan-to-value ratio, property type, occupancy of property,
establishment of an escrow account, etc.). Borrower and property underwriting requirements apply to all loan
programs.
Amenities at Union Park

Design Your Home

Contact Our
New Home Specialists




















